神奈川県央地域の貸し店舗・貸し事務所
神奈川県央地域のエリアで新しく店舗・事務所の移転をお考えになられている方におすすめの貸し店舗・貸し事務所の賃貸情報をご紹介致します。地域の特性をよく知るスタッフが数多くの賃貸情報より希望の物件をお探しいたします。どうぞお気軽にお問い合わせ下さい。
藤沢市藤沢の貸し店舗・貸し事務所|新築!国道467号線沿い!112.46㎡
相模原市麻溝台の貸し店舗・貸し事務所|駐車スペース多数あり! 約130坪
中郡二宮町の貸し店舗・貸し事務所|居抜き!造作譲渡相談可!38.59㎡
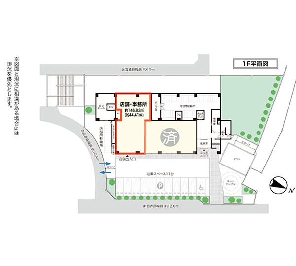
藤沢市本町の貸し店舗・貸し事務所|駐車場あり!バス停目の前!146.83㎡
藤沢市石川の貸し店舗・貸し事務所|ロードサイド P7台付 店舗・営業所に






