事業用不動産の専門サイト 株式会社コタニ興業
1年目の情熱と信頼の創業50年
お気軽にお電話ください045-593-3721
お問い合わせ
事業用不動産の専門サイト 株式会社コタニ興業
menu

■貸し店舗・貸し事務所■ 緑区台村町|築浅未入居ビル2階

コタニ店舗

緑区台村町の貸し店舗・貸し事務所|築浅未入居ビル2階・2区画空き有

物件種別

所在地

交通

貸し店舗・貸し事務所

横浜市緑区台村町

JR横浜線「中山駅」徒歩2分

賃料

礼金

敷金・保証金

管理費

駐車場

750,000円(税別)

1ヶ月

10ヶ月

相談

構造

所在階

専有面積

築年月日

取引形態

地上4階建

2階

241.79㎡

一般媒介

物件ポイント

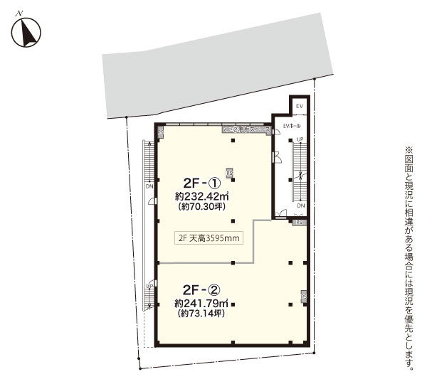
■2階2区画空き有 ①232.42㎡(約70坪)950,000円 ②241.79㎡(約73坪)750,000円

図面はこちらから

メール・お電話でもお気軽に
お問い合わせください

メール
電話
株式会社コタニ興業

上へ戻る上へ戻る

ホームへ戻るホーム